Brandwerend vast frame - MB-118 EI.

MB118EI
MB118-EI 3D Doorsneden

3D Doorsneden

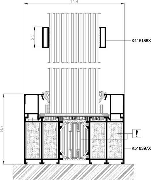
MB118-EI Doornseden profiel

Doornseden profiel

  • MB118-EI 3D Doorsneden

    3D Doorsneden

  • MB118-EI Doornseden profiel

    Doornseden profiel

MB118-EI Vertegenwoordiging

Het MB-118 EI-systeem maakt constructies van vaste scheidingswanden met classificatie EI 120 mogelijk met de mogelijkheid om deuren van de serie MB-78 EI (classificatie EI 60) te integreren, en ook te werken met verlijmde beglazing.

Omschrijving en kenmerken :
  • Aluminium profiel met thermische onderbreking van 34mm, dikte 118mm, serie 5 kamer.
  • Insert profielen van niet-brandbare materialen en opzwellende strips aan de omtrek hiervan.
  • Aluminium glaslatten aangepast aan de dikte van de beglazing.
  • Speciale stalen accessoires beveiligen het glas tegen uitvallen tijdens brand.
Vulling :
  • Gebruik van alle soorten enkele, dubbele, driedubbele en brandwerende panelen met classificatie EI 120. Dikte van 31mm tot 84mm.
Afwerkingen :
  • Geanodiseerd (natuurlijk, goud, brons, zwart).
  • Poeder-coating volgens het RAL-bereik, structuur, gemetalliseerd of fijne structuur.
  • Afhankelijk van uw afwerkingsgraad, uw poedercode, natlak, een speciale kleurbehandeling kunnen wij op uw verzoek reageren.
  • Oppervlaktebehandeling aangepast voor een agressieve omgeving.
Ondersteuning en implementatie :
  • Installatie in verschillende bouwwerken : betonnen sluier, cellenbeton en traditioneel metselwerk, houten frame, lichte scheidingswand.
  • Bevestiging door zelfborende schroeven of roestvrijstalen schroeven.
  • Randapparatuur: gebruik van schuim indien nodig en plat of afwerkingshoek volgens specificaties.
  • Siliconenafdichting indien nodig.
Techniek :

Minimale en maximale afmeting, profieldikte en technische snede, download onze technische fiche.

Klassen van weerstanden
Brandwerendheid
EI120
EN 13501-2
Luchtdichtheid
Klasse 4
PN-EN 12152-2004
Waterdichtheid
Klasse RE 750
PN-EN 12154-2004
Akoestisch verlies
Akoestisch
45 dB (val. Rw)
Thermische isolatie
Uw
< 0.9 W/(m²k)

Accreditaties
ITB
1036/18/R368NZP


Futurium bvba

Lonnoux straat 5
6880 Bertrix (Belgïe)

Bedrijfsnummer : BE-0723.629.502

siège social futurium

 

 

 

 

 mobile bleu  +352 661.119.236
mail bleu  Dit E-mail adres wordt beschermd tegen spambots. U moet JavaScript geactiveerd hebben om het te kunnen zien.


Copyright © Futurium - 2019