• Design
  • Design Schuifraam
  • MB-SKYLINE

MB-SKYLINE - Schuifraam met verborgen frame.

MBSKYLINE
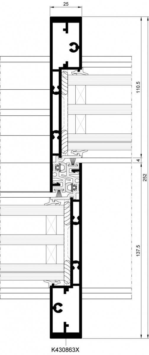
MBSKYLINE Doornseden profiel

Doornseden profiel

  • MBSKYLINE Doornseden profiel

    Doornseden profiel

MB-SKYLINE vertegenwoordiging

Het schuifraamsysteem met verborgen frame MB-SKYLINE is gebaseerd op smalle profielen, waardoor constructies een moderne en minimalistische uitstraling krijgen. Deuren die zijn gemaakt met dit systeem maken een gebouw uitzonderlijk stijlvol en verhogen het prestige van de hele investering.

Beschrijving en kenmerken :
  • Profielen met een diepte van 71mm (vleugel) en 190mm (kozijn met 2 rails) en 292mm (kozijn met 3 rails).
  • Modern design en bijzondere esthetische constructie :
    • Het frame is verborgen in de wanden, vloer en plafond.
    • Volledig vlakke vleugel met frameprofielen aan de zijkanten.
    • Zichtbare breedte van de verbinding van de deurvleugels - 25mm.
  • Deurvleugels met een gewicht tot 750kg en grote afmetingen - tot 4m hoog.
  • Profielen met een driekamerconstructie met thermische isolatie.
  • Beglazing met driedubbele glaspakketten met een dikte van 52 tot 60mm.
  • Handmatige of automatische deuropening.
  • Aandrijvingen en besturingseenheden verborgen in de buitenkader.
  • Mogelijkheid tot toepassing van een automatisering die buiten de constructie is gemonteerd.
Vulling :
  • Alle type beglazing en panelen zijn mogelijk met een dikte van 52 tot 60mm.
Afwerkingen :
  • Geanodiseerd (natuurlijk, goud, brons, zwart).
  • Poeder-coating volgens het RAL-bereik, structuur, gemetalliseerd of fijne structuur.
  • Afhankelijk van uw afwerkingsgraad, uw poedercode, natlak, een speciale kleurbehandeling kunnen wij op uw verzoek reageren.
  • Oppervlaktebehandeling aangepast voor een agressieve omgeving.
Ondersteuning en implementatie :
  • Installatie in verschillende bouwwerken: betonnen sluier, cellenbeton en traditioneel metselwerk, houten frame, lichte scheidingswand.
  • Bevestiging door zelfborende schroeven of roestvrijstalen schroeven.
  • Randapparatuur : gebruik van schuim indien nodig en plat of afwerkingshoek volgens specificaties.
  • Siliconenafdichting indien nodig.
Klassen van weerstanden
Waterdichtheid
Klasse 9A 600Pa
EN 12208
Thermische isolatie
Uw
vanaf 0,85 W/(m²k)
Luchtdichtheid
Klasse 3
EN 12207
Cyclusweerstand
Klasse C5
EN 12210


Futurium bvba

Lonnoux straat 5
6880 Bertrix (Belgïe)

Bedrijfsnummer : BE-0723.629.502

siège social futurium

 

 

 

 

 mobile bleu  +352 661.119.236
mail bleu  Dit E-mail adres wordt beschermd tegen spambots. U moet JavaScript geactiveerd hebben om het te kunnen zien.


Copyright © Futurium - 2019