Systeem MB-78 EI - Brandwerende wanden met automatische schuifraam.

MB78EI DPA
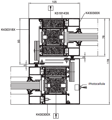
MB78 EI DPA Automatische schuifraam

Automatische schuifraam

  • MB78 EI DPA Automatische schuifraam

    Automatische schuifraam

MB78EI DPA  Vertegenwoordiging

Het MB-78 EI DPA-systeem maakt het mogelijk wanden voor binnen- en buiten toepassing te produceren met enkele of dubbele automatische schuifdeuren op basis van het MB-78EI-systeem.

Omschrijving en kenmerken :
  • Aluminium profiel met thermische onderbreking van 34mm, dikte 78mm, serie met 3 kamers.
  • Insert profielen van niet-brandbare materialen en opzwellende strips aan de omtrek hiervan.
  • Aluminium glaslatten aangepast aan de dikte van de beglazing.
  • Speciale stalen accessoires beveiligen het glas tegen uitvallen tijdens brand.
Vulling :
  • Alle branwerende beglazing, klasse EI 15 en EI 30. Dikte van 16mm tot 30mm.
Afwerkingen :
  • Geanodiseerd (natuurlijk, goud, brons, zwart).
  • Poeder-coating volgens het RAL-bereik, structuur, gemetalliseerd of fijne structuur.
  • Afhankelijk van uw afwerkingsgraad, uw poedercode, natlak, een speciale kleurbehandeling kunnen wij op uw verzoek reageren.
  • Oppervlaktebehandeling aangepast voor een agressieve omgeving.
Ondersteuning en implementatie :
  • Installatie in verschillende bouwwerken : betonnen sluier, cellenbeton en traditioneel metselwerk, houten frame, lichte scheidingswand.
  • Bevestiging door zelfborende schroeven of roestvrijstalen schroeven.
  • Randapparatuur : gebruik van schuim indien nodig en plat of afwerkingshoek volgens specificaties.
  • Siliconenafdichting indien nodig.
Techniek :

Minimale en maximale afmeting, profieldikte en technische snede, download onze technische fiche.

Klassen van weerstanden
Brandwerendheid
EW15 EI30
EN 13501-2
Waterdichtheid
Kasse 5A
PN-EN 12208-2001
Luchtdichtheid
Klasse 2
PN-EN 12207-2001
Akoestisch verlies
Akoestisch
41 dB (val. Rw)
Thermische isolatie
Uw
Vanaf 1,6 W/(m²k)

Accreditaties
ITB
AT-15-6006-2016


Futurium bvba

Lonnoux straat 5
6880 Bertrix (Belgïe)

Bedrijfsnummer : BE-0723.629.502

siège social futurium

 

 

 

 

 mobile bleu  +352 661.119.236
mail bleu  Dit E-mail adres wordt beschermd tegen spambots. U moet JavaScript geactiveerd hebben om het te kunnen zien.


Copyright © Futurium - 2019